Product description
适用范围
XGN2-12箱型固定式交流金属封闭开关设备(以下简称开关设备),用于12kV及以下三相交流50Hz系统中作为接受与分配电能之用,特别适合于频繁操作的场合,其母线系统为单母线(并可派生出单母线带旁路和双母线结构)。
XGN2-12箱型固定式交流金属封闭开关设备,是在普通型开关柜基础上派生出来的适合高海拔地区使用的高原型产品,具有完善的“五防”闭锁功能。
本开关设备符合国家标准GB3906《3-35kV交流金属封闭开关设备》,GB/T11022《高压开关设备和控制设备标准的共同技术要求》,及国家标准IEC60298《额定电压1kV以上52kV以下交流金属封闭开关设备和控制设备》、IEC60694《高压开关和控制设备共用条款》的要求。
型号及其含义

正常使用条件
·周围空气温度不超过40℃,且在24h内测得的平均值不超过35℃,低周围空气温度-25℃
·海拔高度不超过1000m,高原型开关柜海拔高度不超过3000m;
·周围空气没有明显地受到尘埃、烟、腐蚀性和/或可燃性气体、蒸气或盐雾的污染;
·相对湿度:
在24h内测得的相对湿度的平均值不超过95%,在24h内测得的水蒸气压力的平均值不超过2.2kPa,月相对温度平均值不超过90%,月水蒸气压力平均值不超过1.8kPa;
·设备安装时与垂直面的倾斜度不超过5:。
·设备应安装在无剧烈振动和冲击的地方。
注:用户有特殊要求时可与我公司协商解决。
技术参数

结构特点
XGN2-12开关设备为金属封闭箱式结构,柜体骨架原设计为角钢焊接而成,后经我公司研制开发也可为钢板弯制组装结构,这样即大大增加了外形美观,又便于组织生产,缩短生产周期。柜内分为断路器室、母线室、电缆室、继电器室等,室与室之间用钢板隔开。
·断路器室在柜体前下部,断路器的转动由拉杆与操动机构连接,断路器上接线端子与上隔离开关连接,断路器下接线端子与电流互感器连接,电流互感器与下隔离开关的母排连接,断路器室还设有压力释放通道,若内部电弧发生时,气体可通过排气通道将压力释放。
·母线室在柜体后上部,为了减小柜体高度,母线呈品形排列,以7350N抗弯强度的瓷质绝缘子支持,母线与上隔离开关母排连接,相邻两母线室之间可隔离。
·电缆室在柜体下部的后方,电缆室内支持绝缘子可设有电压监视装置,电缆固定在支架上,对于主接线。为联络方案时,本室则为联络小室。继电器室在柜体上部前方,室内安装板可安装各种继电器等,室内有端子排支架,门上可安装指示仪表、信号元件等二次元件,顶部还可布置二次小母线。
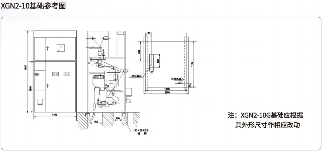
外形和安装尺寸
·断路器的操动机构装在下面左边位置,其上方为隔离开关的操作及联锁机构。开关设备为双面维护,前面检修继电器室的二次元件,维护操动机构,机械联锁及传动部分,检修断路器。后面维修主母线和电缆终端,在断路器室和电缆室均有照明灯。前门的下方设有与柜宽方向平行的接地铜母线,其截面为4x40mm2.
·机械联锁:为了防止带负荷分合隔离开关,防止误分误合断路器,防止误入带电间隔;防止带电合接地。
开关;防止带接地刀合闸,开关设备采用相应的机械联锁。
外形尺寸和结构

产品成套性
供货时应提供下列文件和附件:
·合格证;
·装箱单;
·使用说明书;
·出厂检验报告;
·有关电气图纸;
·合同规定的备品配件;
·主要元件的安装使用说明书。
订货须知
订货时应提供下列资料:
·主回路系统方案图;
·辅助电路电气原理图,辅助电路电压;
·柜内元件清单(包括元器件型号、名称、规格、数量);
·开关设备平面布置图;
·柜体颜色(如无要求按本公司标准供给)
·所需备品备件清单;0其它特殊使用条件。
Brand advantages
实力雄厚strength
经验丰富experience
质量保障quality
服务无忧service
honors
Related products
Cooperative customers












16637392178
扫一扫 关注我们
扫一扫 公众号